Дом по адресу Новосибирск, Кольцово, за 3000000 р.

Адрес Новосибирск, Кольцово
Цена 3 000 000 р.
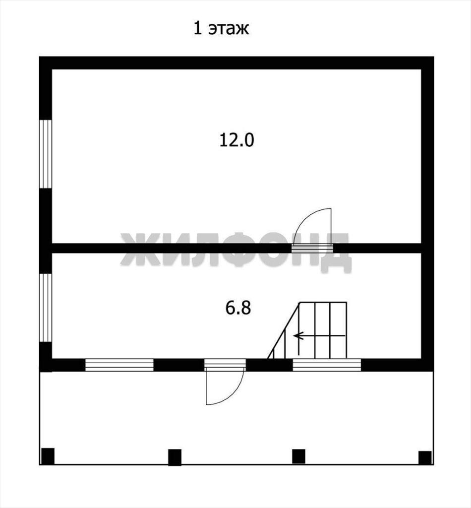
Площадь дома 38,6 м2, участка 8,58 м2
Дача по ул. снт Клен. Отличная дача на ровном светлом участке в СНТ Клен. Дом на фундаменте, на первом этаже комната, кухня и открытая веранда. Второй этаж мансардный. На участке просторная беседка, несколько обустроенных грядок, 2 парника. Есть хозблок, уличный туалет, вкопано 2 септика. Общество активно развивается, круглогодичный свет, зимний (подземный водопровод) , дороги зимой чистятся. Возможен обмен на вашу недвижимость. Возможна продажа в рассрочку. При звонке, пожалуйста, сообщите номер варианта - JV008054186387
Объявление № 22153851
Дата подачи:
11 мая 2025 г. 22:20
Дата обновления:
11 мая 2025 г. 22:20
Просмотров 20 Хотите продать быстрее?

Продавец
Наталья Ивановна
Показать номер телефона
Пожаловаться
Комментарии:
Добавить